Атом Институт Комплексного Проектирования
ул. Белинского, 39, г. Екатеринбург, 620075
Телефон: +7 (343) 266 93 59
Рабочие дни: Понедельник-Пятница Время работы: 09:00-18:00
Атом Институт Комплексного Проектирования
ул. Белинского, 39, г. Екатеринбург, 620075
Телефон: +7 (343) 266 93 59
ikp@atomsk.ru
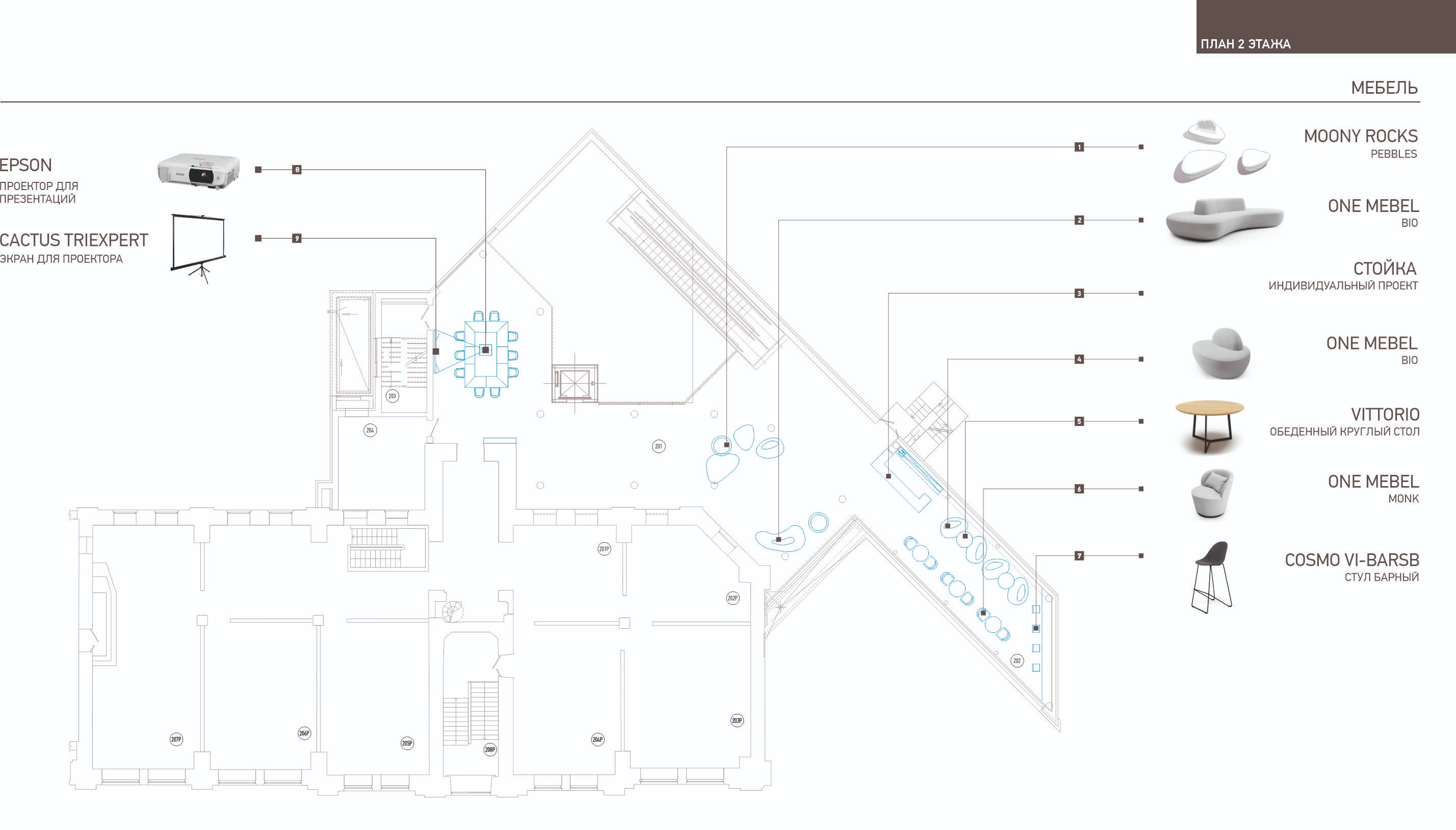
Плитка
Полный экран

Закрыть
/

Эрмитаж-Урал

Статус проекта

Реализован

Местоположение

Мкр-н Центральный, г. Екатеринбург

Год

2019

Типология

Общественные здания

Эрмитаж – Урал


Центр «Эрмитаж-Урал» - это филиал Государственного Эрмитажа в Екатеринбуге. Проект
предполагал реконструкцию исторического здания на улице Вайнера и постройку нового корпуса. В
результате появилось новое музейное пространство, состоящее из существующего помещения и
нового корпуса. Их интерьер представляет собой единое сообщающееся пространство.

Главной задачей в процессе работы было создать современное пространство, в котором будут
подчеркнуты все особенности исторической части интерьеров. В вестибюле центрального входа, в
котором находятся гардероб, зона ожидания и стойка информации, видна историческая кирпичная
кладка. Это в целом нейтральное пространство выполнено в белой штукатурке, оно выступает
своеобразной оболочкой для старого здания. На одну из стен проецируются изображения.
Вестибюль освещается как искусственным светом – через фонари, так и естественным светом из
больших окон с витражным остеклением.
Из вестибюля в экспозицию второго этажа посетители попадают на эскалаторах. В исторической
части здания сохранен старый паркет, в выставочных залах есть мобильные стенды, чтобы можно
было при необходимости трансформировать пространство под различные выставки. Под потолком
установлено специальное освещение, которое будет подсвечивать картины в границах рам.
На одном из этажей также располагается кофейня с витражными окнами и видом на улицу Вайнера.

Всего:

7

Закрыть
Поделиться фотографией
Поделитесь фотографией с коллегами и друзьями, скопируйте ссылку на фотографию или отправьте через социальные сети или мессенджеры

Ссылка на выбранное изображение скопирована

В 4 колонки