НИИ: Наука и искусство
Ссылка на выбранное изображение скопирована
1/6
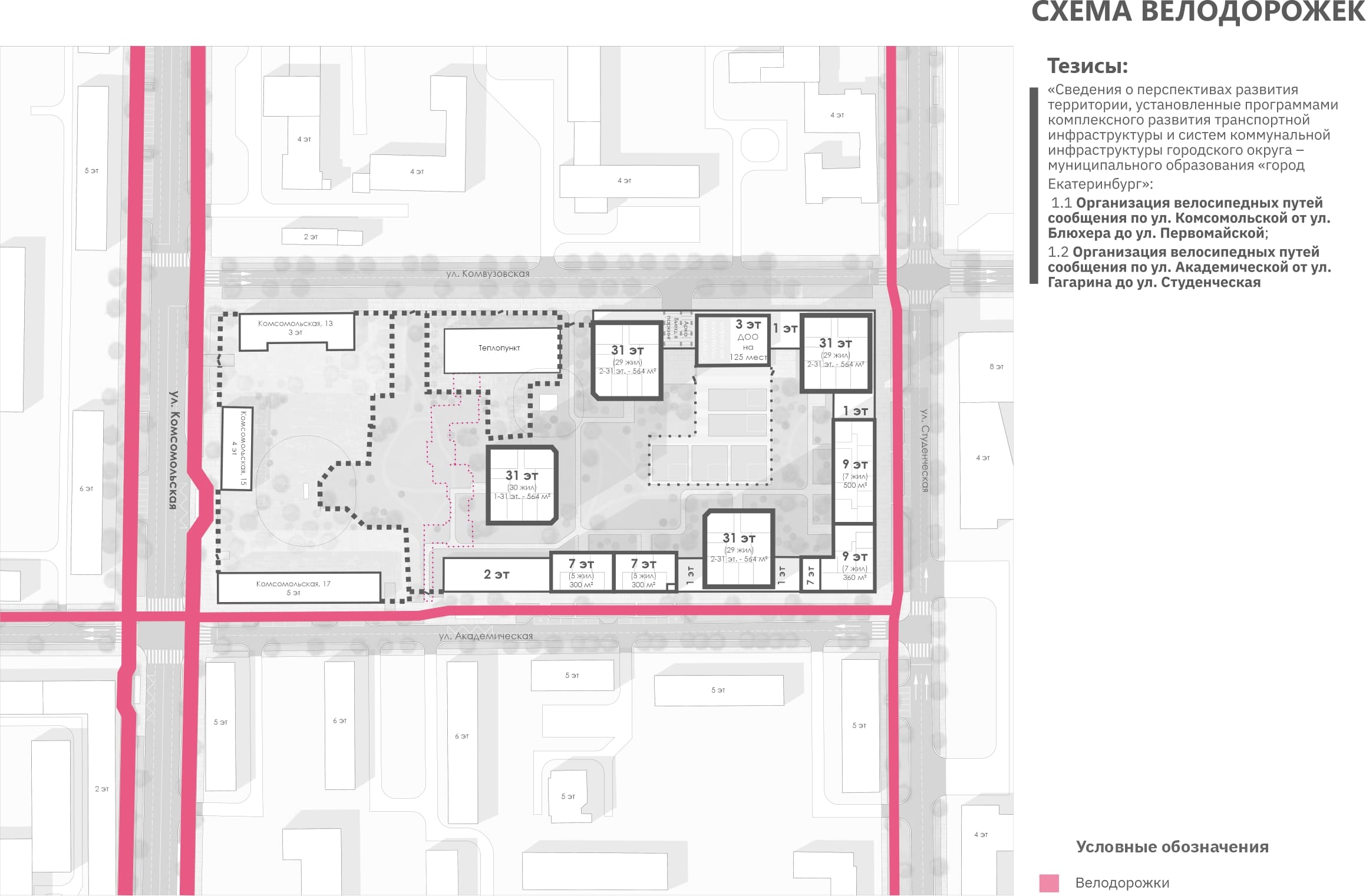
При разработке градостроительной концепции стояло две во многом противоречивых задачи:
с одной стороны, было важно разработать высокоплотную застройку с большим количеством
коммерческих площадей; с другой – не войти в противоречие с масштабом сложившейся
застройки. Для этого была сформирована периметральная застройка базовой этажности (3, 7
и 9 этажей) с одноэтажными зданиями коммерции в разрывах между жилыми домами. Три
высотных здания расположены в структуре периметра, но слегка задвинуты относительно
линии застройки, четвертая высотка вынесена вглубь квартала. Такое расположение по
возможности минимизирует их влияние на пространство улиц. Застройка базовой этажности
составляет 72% от общего периметра, именно она преобладает визуально и помогает создать
сомасштабную комфортную для восприятия среду.
Частное пространство внутреннего двора и общественное пространство улиц четко
разделены. Доступ в дома осуществяется через сквозные холлы. В этом квартале также
создан двухуровневый подземный паркинг, в который вынесены все хозяйственные функции
– загрузка, подъезд такси, хранение. Мусорокамеры находятся в структуре периметра, их
разгрузка осуществляется со стороны улиц.
Первый этаж застройки, а также часть второго этажа заняты коммерцией – супермаркетами,
офисами и мелкой бутиковой нарезкой. Вдоль улицы Комвузовской размещен пристроенный
детский сад.
с одной стороны, было важно разработать высокоплотную застройку с большим количеством
коммерческих площадей; с другой – не войти в противоречие с масштабом сложившейся
застройки. Для этого была сформирована периметральная застройка базовой этажности (3, 7
и 9 этажей) с одноэтажными зданиями коммерции в разрывах между жилыми домами. Три
высотных здания расположены в структуре периметра, но слегка задвинуты относительно
линии застройки, четвертая высотка вынесена вглубь квартала. Такое расположение по
возможности минимизирует их влияние на пространство улиц. Застройка базовой этажности
составляет 72% от общего периметра, именно она преобладает визуально и помогает создать
сомасштабную комфортную для восприятия среду.
Частное пространство внутреннего двора и общественное пространство улиц четко
разделены. Доступ в дома осуществяется через сквозные холлы. В этом квартале также
создан двухуровневый подземный паркинг, в который вынесены все хозяйственные функции
– загрузка, подъезд такси, хранение. Мусорокамеры находятся в структуре периметра, их
разгрузка осуществляется со стороны улиц.
Первый этаж застройки, а также часть второго этажа заняты коммерцией – супермаркетами,
офисами и мелкой бутиковой нарезкой. Вдоль улицы Комвузовской размещен пристроенный
детский сад.
Всего:
20
Поделиться фотографией
Поделитесь фотографией с коллегами и друзьями, скопируйте ссылку на фотографию или отправьте через социальные сети или мессенджеры
Ссылка на выбранное изображение скопирована
