Квартал энтузиастов, 2 и 3 очереди
Ссылка на выбранное изображение скопирована
1/5
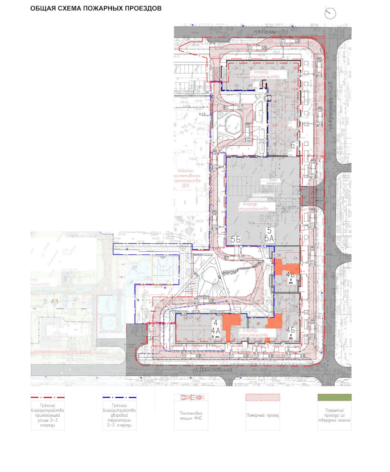
Пространство улиц Даниловская и Краснофлотцев состоит из нескольких элементов:
прифасадного тротуара, зеленой буферной зоны с деревьями, скамейками и
велосипедными парковками, еще одного пешеходного тротуара и велодорожки. Проезжая
часть отделена от пешеходной инфраструктуры параллельной парковкой и зеленой
полосой.
Внутренний двор третьей очереди строительства разделен на две части большим
паркингом. В этих зонах, прилегающих к жилым домам были созданы функциональные
площадки для детей разных возрастов с песочницей, беседкой, качелями и большим
количеством зелени. Так в непосредственной близости от жилья находятся точки
притяжения, которые, при этом, не являются источниками шума. Еще одна спортивная и
игровая зона для детей старшего возраста находится на территории первой очереди
строительства, которая будет доступна всем жителям, так как дома всего квартала
формируют единый периметр. Паркинг будет засажен декоративным виноградом, таким
образом, станет еще одним зеленым элементом на территории двора. Прифасадная зона
сформирована палисадниками.
Проект благоустройства ЖК Энтузиастов направлен на создание комфортной жилой
среды, состоящей из общественного пространства улиц и внутреннего двора. В нем
широко применялось зонирование, которое позволило создать несколько разных по
функциям площадок, пользоваться которыми будут все жители квартала.
прифасадного тротуара, зеленой буферной зоны с деревьями, скамейками и
велосипедными парковками, еще одного пешеходного тротуара и велодорожки. Проезжая
часть отделена от пешеходной инфраструктуры параллельной парковкой и зеленой
полосой.
Внутренний двор третьей очереди строительства разделен на две части большим
паркингом. В этих зонах, прилегающих к жилым домам были созданы функциональные
площадки для детей разных возрастов с песочницей, беседкой, качелями и большим
количеством зелени. Так в непосредственной близости от жилья находятся точки
притяжения, которые, при этом, не являются источниками шума. Еще одна спортивная и
игровая зона для детей старшего возраста находится на территории первой очереди
строительства, которая будет доступна всем жителям, так как дома всего квартала
формируют единый периметр. Паркинг будет засажен декоративным виноградом, таким
образом, станет еще одним зеленым элементом на территории двора. Прифасадная зона
сформирована палисадниками.
Проект благоустройства ЖК Энтузиастов направлен на создание комфортной жилой
среды, состоящей из общественного пространства улиц и внутреннего двора. В нем
широко применялось зонирование, которое позволило создать несколько разных по
функциям площадок, пользоваться которыми будут все жители квартала.
Всего:
12
Поделиться фотографией
Поделитесь фотографией с коллегами и друзьями, скопируйте ссылку на фотографию или отправьте через социальные сети или мессенджеры
Ссылка на выбранное изображение скопирована